Проект «Грация – 104 ВС»

Проект «Грация – 104 ВС»
Характеристики
Площадь дома, м²
104
Количество санузлов
2
Количество этажей
1
Количество спален
3
Стоимость готового дома
от
6800000
р.

Проект одноэтажного дома в классическом стиле со вторым светом будет украшением любого участка.

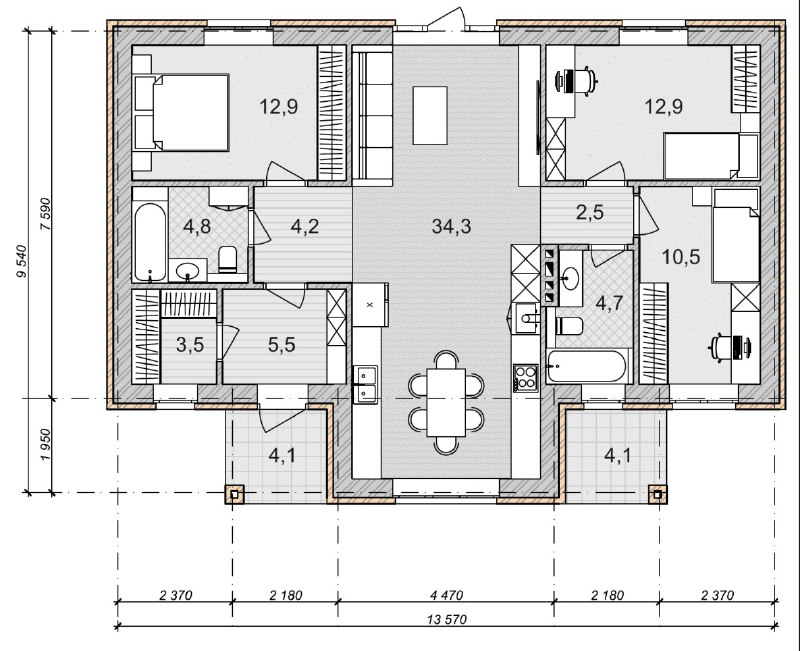
В этом коттедже есть все необходимое: большая кухня-гостиная, три полноценных спальни, 2 санузла, гардеробная и прихожая. Большие панорамные окна от пола придают изысканности внешнему виду этого дома и делают помещение светлее. В проект можно добавить веранду для комфортного отдыха на свежем воздухе.


* Конечная стоимость определяется после осмотра участка клиента.

Планировка

Популярные проекты

Проект «Полонез – 103 ВС»
Проект «Полонез – 103 ВС»
Площадь дома, м²
103
Количество санузлов
2
Количество спален
3
от
6400000
р.
Проект «Фристайл – 103»
Проект «Фристайл – 103»
Площадь дома, м²
103
Количество санузлов
2
Количество спален
3
от
6250000
р.
Проект «Фокстрот – 85»
Проект «Фокстрот – 85»
Площадь дома, м²
85
Количество санузлов
1
Количество спален
2
от
5950000
р.
Менеджер
Менеджер компании
Консультация специалиста
Мы свяжемся с вами в течение 5 минут
Менеджер
Менеджер компании
Оставить заявку
Мы свяжемся с вами в течение 5 минут
Менеджер
Менеджер компании
Заказать расчет
Мы свяжемся с вами в течение 5 минут